Цвет
золото
Материал
латунь
Монтаж
на стену
Страна бренда
Италия
Оснащение
Легкое очищение, Поворотная верхняя часть, Регулировка по высоте
Гарантия, лет
5
Поверхность
матовая
Форма
прямоугольная
Вращение излива
нет
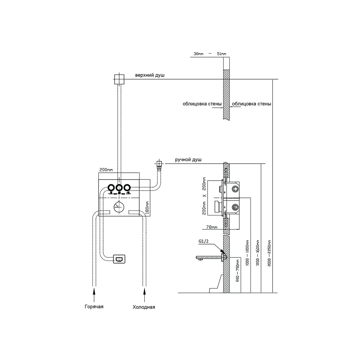
Длина душевого шланга, мм
1500
Длина излива, мм
225
Защита от обратного потока
нет
Наличие излива
да
Ограничитель расхода воды
да
Скрытый монтаж
да
Стандарт подводки
1/2"
Термостат
нет
Тип товара
Душевая система
Управление
рычажное






























