Монтаж
напольный, на поддон, пристенный, угловой
Страна бренда
Италия
Коллекция
SLIDER
Цвет профиля
сталь
Материал полотна двери
стекло
Материал профиля
алюминий
Оснащение
Петли раздвижной конструкции
Гарантия, лет
3
Поверхность
матовая
Форма
квадратная
Вес без упаковки, грамм
81800
Высота упаковки, мм
170
Дизайн
современный
Длина/глубина упаковки, мм
2000
Исполнение стекла
прозрачное
Количество секций
2
Конструкция дверей
распашная
Ориентация
универсальная
Тип товара
Душевой уголок
Толщина стекла, мм
8
Ширина упаковки, мм
800
Вес с упаковкой, грамм
84800
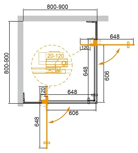
Ширина, мм
800
Высота, мм
1950
Длина, мм
800
























































