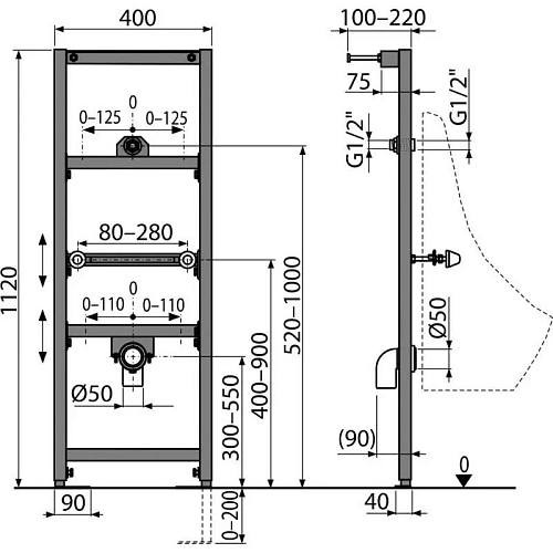
Для подключения устройства смыва для писсуара ATS001
Регулируемые по высоте монтажные перекладины
Выдвижные ножки с регулировкой в диапазоне 0–200 мм
Обрамление двусоставное – можно установить дополнительно
Водоснабжение с возможностью регулировки от центра 0–125 мм
Сток с возможностью регулировки от центра 0–110 мм
Материал: металл обработанный порошковой краской






















