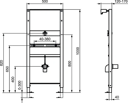
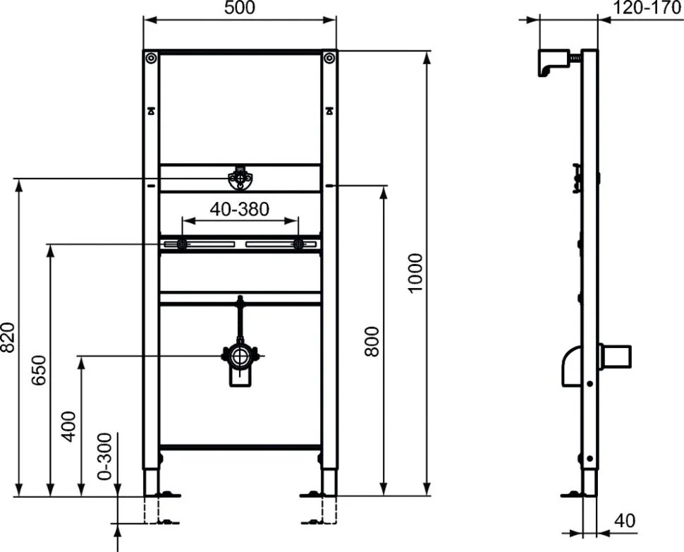
PROSYS Рама для монтажа писсуара с верхней подводкой перед капитальной стеной или между двумя гипсокартонными стенами. Рама тестирована нагрузкой 130 кг; устойчива к коррозии и царапинам. Легкая и быстрая установка при помощи системы EasyFix system. Регулируемая высота от 0 до 300 мм. Минимальная толщина 120 мм. Регулируемые монтажные пластины. Аксессуары в комплекте: крепежи для писсуара, крепежи для рамы, сливной патрубок, подключение для воды G 1/2 , 1 шт. Коннектор K710667 заказывается дополнительно!














