- Крепится в капитальную стену и пол
- Смыв при помощи сенсорной кнопки
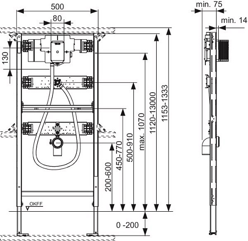
- Монтажная глубина: 7.5 см
- Монтажная высота: 112 см
- Диаметр слива: 5 см
- Гарантия: 10 лет
- Германия
- Две регулируемые опоры для напольного крепления 0–20 см
- Регулируемая монтаж
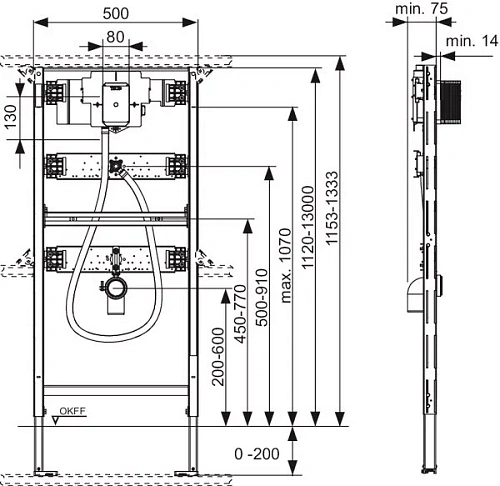
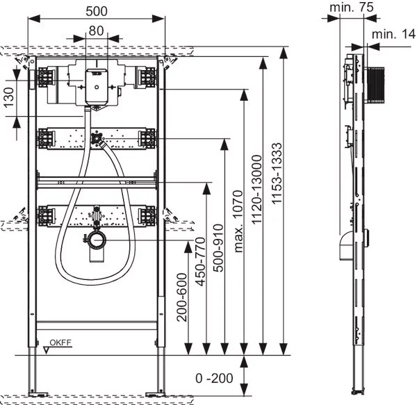
Система инсталляции для писсуаров TECE Profil U2 9320013 предназначена для монтажа в металлических или деревянных каркасных стенах, перед стеной или в качестве углового модуля. Комплект включает клапан писсуара U2 с контролем потока и системой защиты застенного пространства, настенный уголок для подводки воды Rp 1/2", фановый отвод DN50 с защитной заглушкой и 2 шпильки M8 для крепления писсуара. Электропитание – 230/12 В, имеется встроенный трансформатор для подключения к сети 220 В. Модель не подходит для установки полувстраиваемых писсуаров, например Keramag Joly and Visit.
Дополнительные характеристики:






















