Содержит дозатор таблеток для унитаза
Рама для подвесного унитаза с пластинами, предназначенными для монтажа поддерживающих поручней
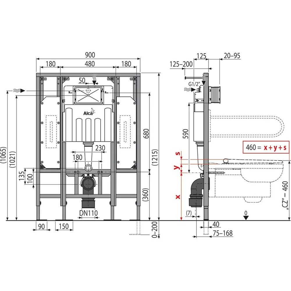
Регулируемые выдвижные ножки в диапазоне 0–200 мм с тормозной системой
Обозначение центрирования и нивеляции
Подвижной держатель для стокового колена, устанавливаемый в восьми положениях на расстоянии 0–93 мм
Угловой вентиль с возможностью подключения к системе трубопроводов Mepla
Конструкция рамы позволяет производить монтаж к профилю для гипсокартона, предназначенного для этих целей, или к несущей стене
Установленная система закрывается гипсокартонным листом и не нуждается в дополнительных крепежных элементах
Конструкция полистирольной изоляции предотвращает процесс конденсации на поверхности бачка и ослабляет вибрацию в строительной конструкции
Возможность установки кронштейна с переходом DG 1/2" для подключения сиденья-биде или бидетты
Двойной смыв, независимо регулируемый, с гигиеническим резервом
Подходит для установки пневматического или с
























































