- Для небольших, узких ванных комнат
- Смывной бачок 80 мм
- С маленьким ревизионным окошком
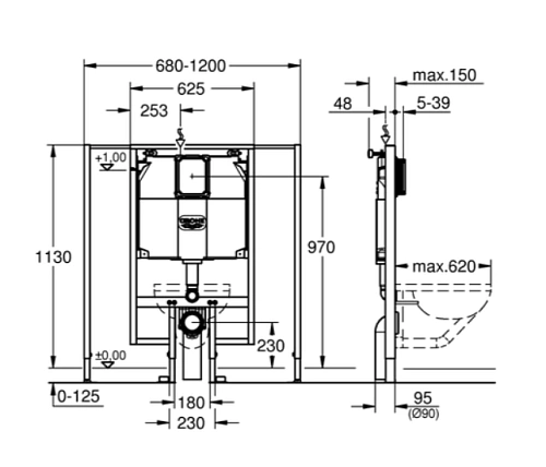
- Монтажная высота 1,13 м
- Регулируемая ширина элемента, 0.70 - 1.20 м
- Для монтажа на стене
- Самонесущая стальная рама с
- Порошковым напылением
- Подготовлена для облицовки
- Фиксированные подключения
- Для одиночного монтажа
- Быстрая регулировка по высоте
- Крепежный материал
- 2 болта-держателя для унитаза
- Крепление для керамики
- Расстояние между болтами 180/230 мм
- Выходной патрубок для унитаза Ø 90 мм
- Регулировка глубины монтажа
- Редуктор Ø 90/110 мм
- Впускной и смывной гарнитуры
- Смывной бачок 80 мм, 6 - 9 л
- Заводская настройка 6 л и 3 л
- Пневматический смывной клапан с тремя режимами
- Слива: 2-х объёмный, старт/стоп, или непрерывный
- Подключение воды сверху
- Арм
















