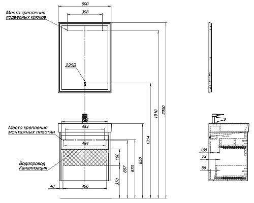
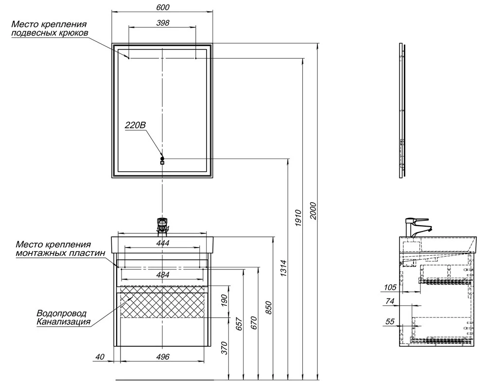
Мебель для ванной Aquanet Nova Lite 60 из влагостойкой ламинированной древесно-стружечной плиты в благородном цвете «дуб рошелье» имеет достойный вид. Фактура натурального дерева выглядит изысканно, а подвесной монтаж придает визуальную легкость тумбе шириной 60 см. Она оборудована двумя выдвижными ящиками. Ящики довольно вместительные и позволяют разместить все необходимое. Фасады выполнены с декоративной интегрированной ручкой, не имеющей острых краев и внутренних углов, что обеспечивает удобство в эксплуатации и легкий уход за мебелью. Ящики комплектуются направляющими немецкого производства Hettich Quadro, оснащенными доводчиками. Неглубокая и стильная керамическая раковина «Латина» идеально подходит к тумбе. Комплект дополняет зеркало с LED-подсветкой по периметру.




































