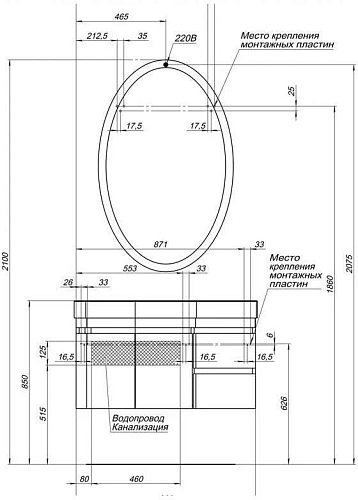
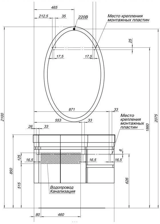
Подвесной набор мебели для ванной комнаты в стиле модерн подойдет тем, кто предпочитает современный стиль в интерьере. Обтекаемые формы, лаконичные цвета, оригинальная деталь – ручки в виде прорезей в фасадах, все это выделяет гарнитур Сопрано, делает его стилистическим центром ванной комнаты. Раковина-столешница из литьевого мрамора повторяет плавные линии тумбы, широкое крыло позволяет с удобством разместить большое количество гигиенических средств и принадлежностей. Комплект имеет как правосторонний, так и левосторонний вариант расположения. Большое овальное зеркало оборудовано встроенной подсветкой. <















































