Сиденье выполнено из удивительно долговечного материала - дюропласта устойчивого к появлению царапин. Механизм микролифта рассчитан на 100 тысяч циклов плавного закрывания. Крепления из нержавеющей стали прослужат более 10 лет.
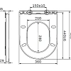
Сиденье подходит для унитаза C508607WH. ""


















