Монтаж
напольный, на поддон, пристенный, угловой
Страна бренда
Италия
Коллекция
LUCE
Цвет профиля
хром
Материал полотна двери
стекло
Материал профиля
алюминий
Гарантия, лет
3
Поверхность
глянцевая
Форма
прямоугольная
Вес без упаковки, грамм
62000
Высота упаковки, мм
160
Дизайн
современный
Длина/глубина упаковки, мм
550
Исполнение стекла
прозрачное
Количество секций
2
Конструкция дверей
раздвижная
Ориентация
универсальная
Тип товара
Душевой уголок
Толщина стекла, мм
6
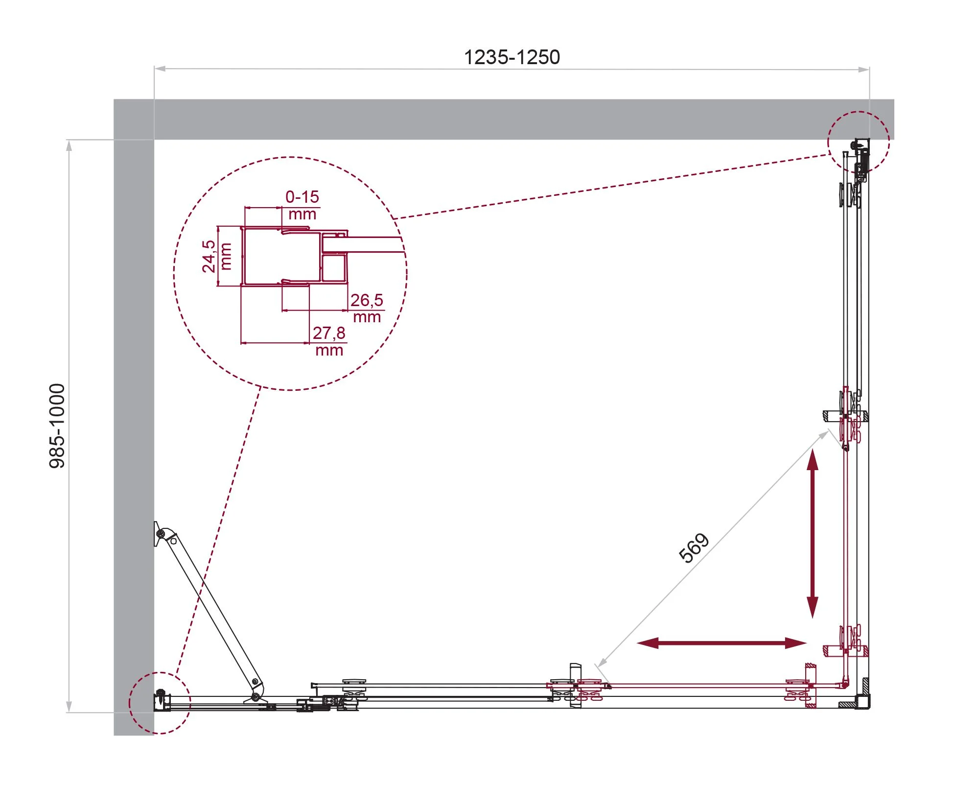
Ширина входа, мм
569
Ширина упаковки, мм
2020
Вес с упаковкой, грамм
66000
Ширина, мм
1000
Высота, мм
1950
Длина, мм
1250
























