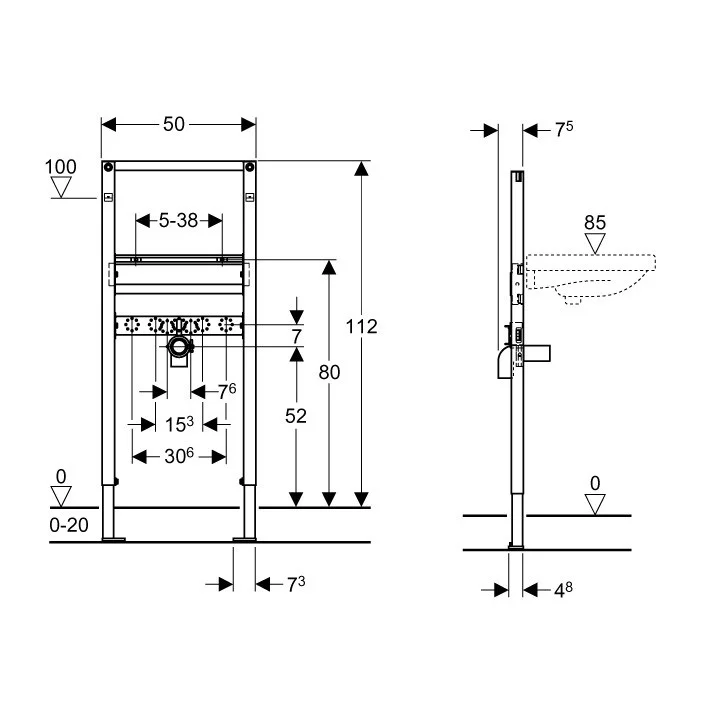
Размер: 112х50х8см. Geberit Duofix монтажный элемент для раковины, Н112
Для скрытой установки в гипсокартонной перегородке или на капитальной стене с облицовкой панелями (гипсовыми или деревянными)
Для крепежа в пол (0 - 20 см)
Для умывальника с вертикальным смесителем













